The Lexington LP Siding is a 10’ x 24’ tiny home offering a balance of style and function, priced at $79,900. It features LP siding, metal roofing, and a cozy farmhouse-inspired interior with natural wood ceilings and white-painted walls.
The Lexington – All Wood is a 10’ x 24’ tiny home that captures rustic charm and simplicity, priced at $74,900. Unlike the standard LP siding model, this version showcases an all-wood exterior with a choice between flat log siding or vertical board and batten, finished with a metal roof for a durable, natural aesthetic.
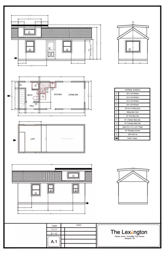
Inside both model options, the Lexington includes a farm-style kitchen sink, full-size cabinets, and a cooktop, meeting practical needs while maintaining a cozy ambiance. The bathroom is designed with a 36” shower and a sliding barn-style door. Comfort is provided by a 9000 BTU mini-split system, perfect for all seasons.




































